Renovation Design
Whether you need to show a proposed property or document an existing structure. If you want to see the curb appeal before you commit to a renovation or just test-drive a new house color, we can help.
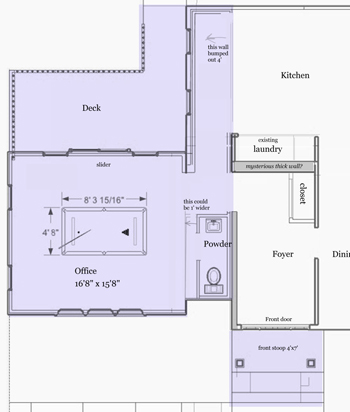
Taking the dimension of an existing structure, whether it is a single room or a whole house, and then producing three-dimensional models of possible renovation choices, allows the project to be considered on many fronts before moving forward with expensive work. I work in actual inches and feet and can produce plans, for review or use by the builder or architect, depending on the scope of the work.
Renovation Concepts for Restaurant


Expansion Concepts for Small Home





Renovation Concept Rendering of Fireplace and Shelves

Backyard Patio Concept Rendering

Small Addition to Antique Home




Commercial Renovation Concept Rendering


Master Bath Renovation
Small Kitchen Renovation